Kayseri Trade Center - Project Description :


Yarışma alanı kent merkezine yakın olmakla beraber teğet bir ilişki içindedir. Arazinin güneyinde yoğun ve güçlü bir yol aksı (Kocasinan Bulvarı) , kuzeyinde ise Kayseri Havaalanı'na kadar uzanan  düşük yoğunluklu yeni bir yapılaşma alanı bulunmaktadır. Gelecekte  Malatya ve Sivas istikametinden gelip Ankara'ya devam eden ve arazinin kentle olan yaya ilişkisini zayıflatan  Kocasinan Bulvarı'nın varlığını koruyacağını, arazinin kuzeyinde havalimanına doğru yapılaşmanın artacağını öngörebiliriz. Bu öngörü ile Kocasinan Bulvarı'nın trafik yoğunluğu göz önüne alınarak içe dönük bir yapı kurgusu ile tasarıma başlanmıştır.

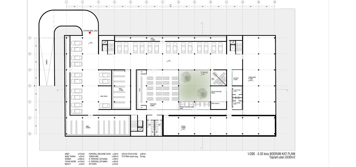
Yapının plan şeması  Kayseri'nin mimari geleneğinde sıklıkla rastlanan "avlulu yapı" şemasında ele alınmıştır. Yapı birbirine bitişik, biri açık, biri kapalı iki avludan meydana gelmektedir. Bu özellik Kayseri Gevher Nesibe Şifahanesi gibi tipik Selçuklu medresesi planına sahip yapılarda da görülmektedir. Gevher Nesibe Şifahanesi'ndeki  bitişik iki yapıdan, batıda şifahane doğudaki tıp medresesidir. Bu işlevsel ayrım benzer şekilde projede avluların, hizmet alanları ile servis alanlarını ayırması olarak yorumlanmıştır.  Temel amaç; Kayseri'nin tarihinden gelen ve sahiplenilmesi gereken mimari mirasa ait değerlerin yeniden yorumlanması   ve modernize edilerek  projenin tasarım dili ve işlev şemasının oluşturulmasıdır.  

Project Details :


Date : 09.06.2014

Title : Kayseri Trade Center

Client : Kayseri Municipality

Location : Kayseri

Area : 7190 m²

Status : Purchase Award

Scroll to Top